Nipvägen 7 - foton och fakta

Foton
Klicka här och se bilder på exteriör och interiör
Pdf, 6.1 MB, öppnas i nytt fönster.
FAKTA:
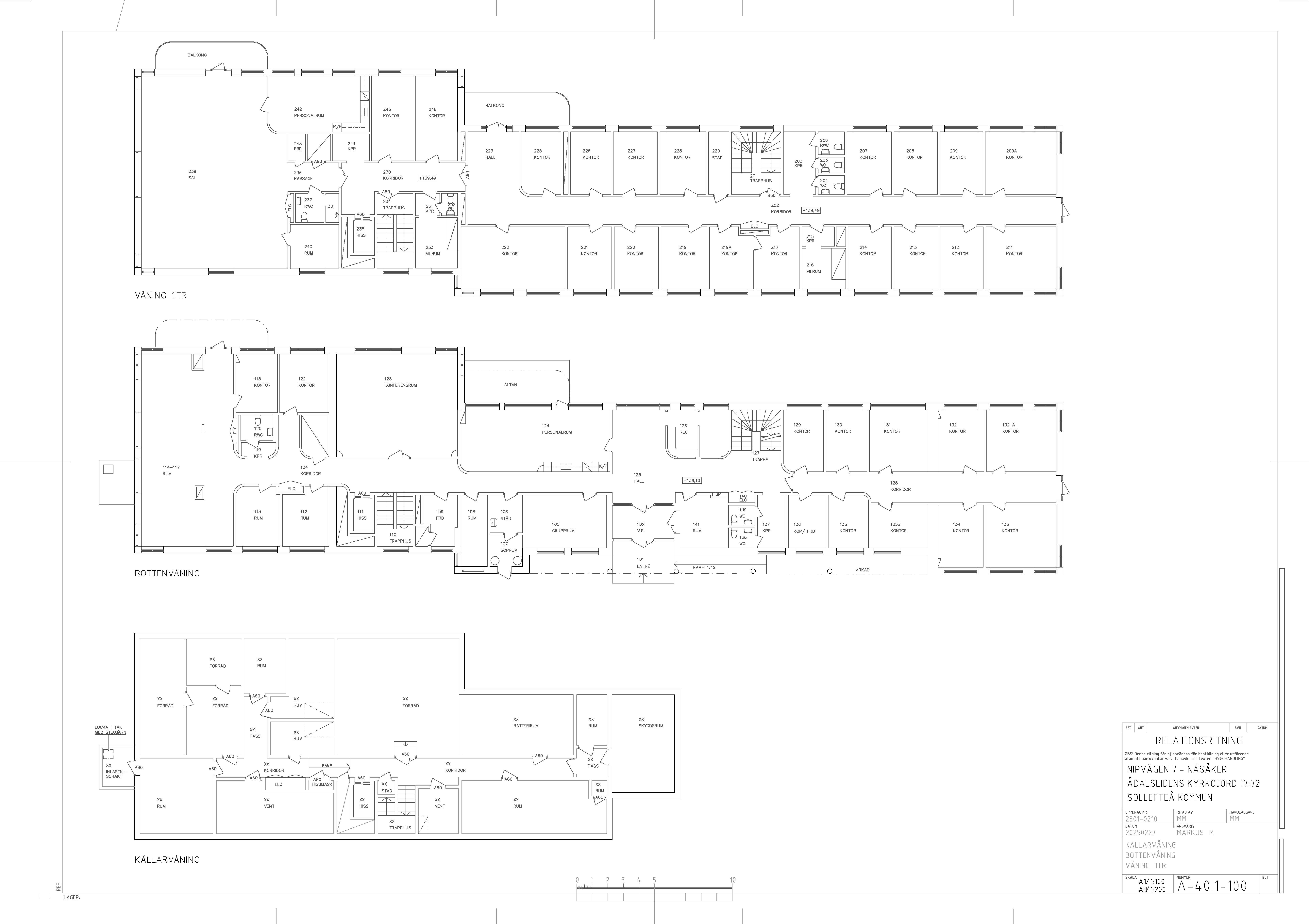
Adress: Nipvägen 7, Näsåker
Ytor:
Totalyta: 2023 kvm bruttoarea
Kontor: 34 st
Konferensrum: 1 st
Samlingssal: 1 st
Öppet rum/kontorslandskap: 1 st
Personalrum: 2 st
Dusch: 1 st
Toaletter: 8 st
Förråd Källare: 7 st
Garageplatser: 2 st
Carport med motorvärmare: 12 st
P-platser med motorvärmare: 26 st
P-platser för besökare 7 st
Handikapp platser med motorvärmare: 2 st
Ytbeskrivning:
Kontorsrum kan ytskikts renoveras vid eventuell uthyrning.
Bekvämligheter:
Kök/pentry, skyltläge(stolpe), RWC, tennisplan, närhet till utegym.
Fastighetsbeteckning:
Ådals-Lidens Kyrkojord 17:72
Våningsplan:
Källare, våning 1 och våning 2.
Boka din egen tid. Välkommen att kontakta oss!
Mikael Näsström - Tillväxtchef
Telefon 070-517 76 21
E-post mikael.nasstrom@solleftea.se
Thomas Östlund - Näringslivschef
Telefon 070-211 15 38
E-post thomas.ostlund@solleftea.se
